ハーモニーテラス東四つ木Ⅶ
本物件のお問い合わせはアキバエステートまでお気軽にお問い合わせください。
【秋葉原駅前本店 by株式会社OCEAN】
【住所】東京都千代田区神田佐久間町1-16 大橋ビル604
【連絡先】℡:03-6262-9550 FAX:03-6262-9551
【営業時間】10:00~19:00(定休日なし※年末年始を除く)
【mail】info@akiba-estate.jp
【ホームページ】http://www.akiba-estate.jp
【上野アメ横店 by株式会社SUNS】
【住所】東京都台東区上野4-7-8 アメ横センタービルM4
【連絡先】℡:03-5834-3833 FAX:03-5834-3834
【営業時間】10:00~19:00(定休日 第三水曜日・年末年始)
【mail】ueno@akb-o.jp
【ホームページ】http://www.akb-o.jp
【市ヶ谷店駅前店 by株式会社SUNS】
【住所】東京都新宿区市谷田町1-2 ランゴスタビル7F
【連絡先】℡:03-6265-0236 FAX:03-6265-0237
【営業時間】10:00~19:00(定休日なし※年末年始を除く)
【mail】ichigaya@akiba-estate.jp
【ホームページ】http://www.akb-i.jp
物件情報
周辺施設
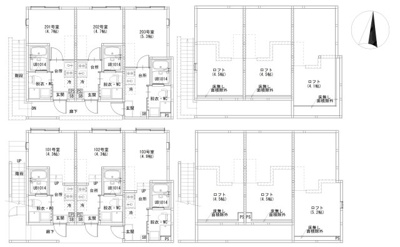
ハーモニーテラス東四つ木Ⅶ の物件概要
【アパート】| 所在地 | 東京都葛飾区東四つ木3丁目15-1 | ||
|---|---|---|---|
| 交通 | |||
| 賃料 | 5.95万円~6.4万円 | 管理費・共益費 | 4,000円 |
| 面積 | 15.53㎡~17.78㎡ | 築年月(築年数) | 2025年 11月 ( 新築 ) |
| 種別/構造 | アパート / 木造 | 階建 | 2階建 |
| 備考 | 本物件のお問い合わせはアキバエステートまでお気軽にお問い合わせください。 【秋葉原駅前本店 by株式会社OCEAN】 【住所】東京都千代田区神田佐久間町1-16 大橋ビル604 【連絡先】℡:03-6262-9550 FAX:03-6262-9551 【営業時間】10:00~19:00(定休日なし※年末年始を除く) 【mail】info@akiba-estate.jp 【ホームページ】http://www.akiba-estate.jp 【上野アメ横店 by株式会社SUNS】 【住所】東京都台東区上野4-7-8 アメ横センタービルM4 【連絡先】℡:03-5834-3833 FAX:03-5834-3834 【営業時間】10:00~19:00(定休日 第三水曜日・年末年始) 【mail】ueno@akb-o.jp 【ホームページ】http://www.akb-o.jp 【市ヶ谷店駅前店 by株式会社SUNS】 【住所】東京都新宿区市谷田町1-2 ランゴスタビル7F 【連絡先】℡:03-6265-0236 FAX:03-6265-0237 【営業時間】10:00~19:00(定休日なし※年末年始を除く) 【mail】ichigaya@akiba-estate.jp 【ホームページ】http://www.akb-i.jp |
||
| 取扱会社 |
|
||
※地図上に表示される物件の位置は付近住所に所在することを表すものであり、実際の物件所在地とは異なる場合がございます。
ハーモニーテラス東四つ木Ⅶの空室情報
| 所在階 | 賃料 | 管理費・共益費 | 敷金/礼金/保証金/償却/敷引 | 間取り | 面積 | 詳細 | 検討リスト |
|---|---|---|---|---|---|---|---|
| 1階 | 5.95万円 | 4,000円 | 0ヶ月/ 1ヶ月/ -/ -/ - | 1R |
15.53㎡ | 詳細を見る | 追加する |
| 1階 | 6.1万円 | 4,000円 | 0ヶ月/ 0ヶ月/ -/ -/ - | 1R |
15.53㎡ | 詳細を見る | 追加する |
| 1階 | 6.3万円 | 4,000円 | 0ヶ月/ 0ヶ月/ -/ -/ - | 1R |
17.78㎡ | 詳細を見る | 追加する |
| 2階 | 6.05万円 | 4,000円 | 0ヶ月/ 1ヶ月/ -/ -/ - | 1K |
15.53㎡ | 詳細を見る | 追加する |
| 2階 | 6.2万円 | 4,000円 | 0ヶ月/ 1ヶ月/ -/ -/ - | 1K |
15.53㎡ | 詳細を見る | 追加する |
| 2階 | 6.4万円 | 4,000円 | 0ヶ月/ 1ヶ月/ -/ -/ - | 1K |
17.78㎡ | 詳細を見る | 追加する |















