00件
最近見た物件
00件
検討リスト
市ヶ谷の賃貸マンション|アキバエステート市ヶ谷店 > 物件一覧 > BLX Hirai > 103
【内見可能!!新築物件♪】ホワイトを基調とした大人気デザイナーズシリーズ!!毎月の光インターネットが無料で使いたい放題です!シャワー室とトイレが別にあるのでバストイレ別でお部屋をお探しの方にもオススメです。寝室や趣味の部屋など用途さまざまな大型ロフト付き☆独立洗面台☆人気のIot機能搭載!契約金のクレジットカード決済が可能ですので、分割可・ポイント貯まります!
画像をクリックして視点を操作


※1. 仲介手数料は仮の価格となりますので、実際の価格に関してはお気軽にお問い合わせ下さい。
※2. 1か月を30日として計算しています。
※3. その他費用の項目は、保険料、IoT登録利用料、24時間サポート、インターネット開通費用、除菌・消臭代になります。

| 所在地 | 東京都江戸川区平井1丁目19-1 | ||
|---|---|---|---|
| 交通 | |||
| 間取り/詳細 |
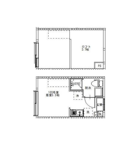
1R 洋室 5.5帖/その他 3.7帖 |
面積/バルコニー面積 | 12.46㎡/- |
| 賃料 | 6.7万円 | 管理費・共益費 | 4,000円 |
| 敷金/礼金/保証金 | 0ヶ月/1ヶ月/- | 償却/敷引 | -/- |
| 更新料 | - | 敷金積み増し | - |
| 権利金/雑費 | -/- | 駐車場/月額料金 | -/- |
| 保険加入/料金 | 有/20,000円 | 保険名/保険期間 | 家財保険/2年 |
| 保証人代行義務 | 必加入 | 保証会社 | その他 |
| 保証会社詳細 | 初回保証料 月額賃貸料の30~50%(最低保証料30,000~50,000円) | 向き | - |
| 築年月(築年数) | 2025年 12月 (新築) | 契約期間 | 2年 |
| 種別/構造 | アパート/木造 | 部屋/所在階/階建 | 103/ 1階/ 2階建 |
| 総戸数 | 8戸 | 現況/入居可能日 | 完成済み/即時 |
| 特優賃 | - | 取引態様/賃貸区分 | 仲介/一般 |
| 物件番号 | 100332789 | 取引条件の有効期限 | 2026年02月21日 |
| 設備条件 |
|
||
| 備考 |
【お部屋探しはアキバ・エステートへお任せ下さい】 東京・埼玉・千葉・神奈川の新築・デザイナーズ物件ならアキバエステートへ! 新築・築浅などデザイナーズ物件の管理戸数1500部屋以上! 白を基調とした内装が自慢のおしゃれな管理・専任物件が豊富! アキバエステートでのみご紹介な物件多数! 初期費用を抑えたい!敷金・礼金ゼロゼロ物件やフリーレント付き物件など♪ 不動産キャリアの長いスタッフが多数在籍しておりますので、 大家さんや仲の良い管理会社さんへ直接交渉が可能です。 初めての一人暮らしや上京される方、審査が不安な方、どんな条件でも遠慮なくお気軽にご相談ください! 様々な角度からお客様の『いい住まい探し』をサポートさせて頂きます。 【気になる物件はまとめてお問合せOK!】 ホームページに掲載されている物件はほんの一部ですので、 ぜひ一度、お問い合わせ・ご来店ください。 フレッシュな情報でたくさんの物件をご紹介させて頂きます。 【SUUMO】【HOME'S】【at home】【CHINTAI】【yahoo】【カナリー】 などのポータルサイトやアプリに掲載されている他不動産会社さんの物件も 全て好条件で一括でご紹介させて頂きます。 さらに管理物件が豊富な当店なら!他不動産会社さんの紹介できる物件「+@」の物件がご紹介可能! 【関東全域の様々なエリアにご対応可能!地域に詳しい私達にお任せ下さい!】 土地勘がわからない・治安が気になる・住む場所が決まっていない…そんな方もご安心ください! 関東を知りつくしたスタッフが忖度なく治安の良し悪しをしっかりとご説明します。 不動産の事でお困りの方・お悩みの方はどんな事でも遠慮なくご相談ください。 キャリア豊富なプロのアドバイザーが全力でサポートさせて頂きます。 当店では契約金の分割・クレジットカード決済が可能ですので、 諸条件などなんでもお気軽にお問い合わせください。 是非一度、アキバ・エステートにお立ち寄り下さい。 スタッフ一同心よりお待ちしております。 【アキバ・エステート 秋葉原駅前本店 by株式会社OCEAN】 【住所】東京都千代田区神田佐久間町1-16 大橋ビル604 【連絡先】℡:03-6262-9550 FAX:03-6262-9551 【営業時間】10:00~19:00(定休日なし※年末年始を除く) 【mail】info@akiba-estate.jp 【ホームページ】http://www.akiba-estate.jp 【アキバ・エステート 上野アメ横店 by株式会社SUNS】 【住所】東京都台東区上野4-7-8 アメ横センタービルM4 【連絡先】℡:03-5834-3833 FAX:03-5834-3834 【営業時間】10:00~19:00(定休日 第三水曜日・年末年始) 【mail】ueno@akb-o.jp 【ホームページ】http://www.akb-o.jp 【アキバ・エステート 市ヶ谷店駅前店 by株式会社SUNS】 【住所】東京都新宿区市谷田町1-2 ランゴスタビル7F 【連絡先】℡:03-6265-0236 FAX:03-6265-0237 【営業時間】10:00~19:00(定休日なし※年末年始を除く) 【mail】ichigaya@akiba-estate.jp 【ホームページ】http://www.akb-i.jp ◆◆◆◆◆◆◆◆◆◆◆◆◆◆◆◆◆◆◆◆◆◆◆◆◆◆◆◆◆◆◆◆ 当店が日本テレビ系列「フルって発掘No.1」にて特集されました! お客様の大事なお部屋探しは当店にお任せ下さい。 プロのアドバイザーがおすすめの物件を多数ご紹介します! 物件知識・詳しい周辺環境ももちろんお任せ下さい。 ◆◆◆◆◆◆◆◆◆◆◆◆◆◆◆◆◆◆◆◆◆◆◆◆◆◆◆◆◆◆◆◆ |
||
| 条件(その他) | IoT登録利用料:1万6,500円 24時間サポート:1万9,800円 インターネット開通費用:1万6,500円 除菌・消臭代:1万9,800円 室内清掃費用:3万8,500円 町会費:300円(月額) | ||
| 取扱会社 |
|
||
| QRコード |
このQRコードを読み取ることで、スマホでも物件情報を確認できます。 |
||
※地図上に表示される物件の位置は付近住所に所在することを表すものであり、実際の物件所在地とは異なる場合がございます。
BLX Hiraiに関するこだわり条件から探す